Узнай первый о скидках и новостях!
Специалисты компании ГАСЗНАК разработали и изготовили схемы движения на производственно-складских территориях
Гасзнак
+7 (495) 649- 61-31
zakaz12@gasznak.ru
Головинское шоссе, 5 , Бизнес-центр «Водный», офис 6025
125212
Москва
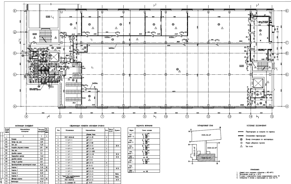
Компания ГАСЗНАК — признанный эксперт в области организации дорожного движения и обеспечения безопасности на промышленных объектах — успешно завершила проект по разработке и изготовлению схем движения на территории крупных производственно-складских комплексов.
Новые схемы движения разработаны с учётом особенностей логистики, интенсивности транспортных потоков и требований промышленной безопасности. Специалисты ГАСЗНАК провели детальный анализ инфраструктуры объектов, выполнили замеры, учли маршруты движения погрузочной техники, автотранспорта и пешеходов, а также выявили зоны повышенного риска.

В рамках проекта были изготовлены и установлены информационные стенды, схемы движения, дорожные знаки, горизонтальная и вертикальная разметка, а также электронные табло «Количество дней без травматизма», оснащённые датчиками температуры, уровня шума и модулями точного отображения даты. Все элементы соответствуют требованиям ГОСТ и отраслевым стандартам.

Комплексное решение позволило не только значительно повысить уровень безопасности персонала и посетителей, но и оптимизировать внутренние логистические процессы, а также усилить культуру промышленной безопасности за счёт наглядной визуализации ключевых показателей.

«Безопасность на производственной территории начинается с чёткой и понятной организации движения, — отметил руководитель проекта от ГАСЗНАК. —
Наши решения помогают заказчикам избежать аварийных ситуаций, снизить простои техники и обеспечить бесперебойную работу складов и цехов. А такие элементы, как электронные табло с интегрированными датчиками, дополнительно мотивируют коллективы беречь здоровье и соблюдать правила».

12 декабря 2025
Компания ГАСЗНАК — признанный эксперт в области организации дорожного движения и обеспечения безопасности на промышленных объектах — успешно завершила проект по разработке и изготовлению схем движения на территории крупных производственно-складских комплексов.
Новые схемы движения разработаны с учётом особенностей логистики, интенсивности транспортных потоков и требований промышленной безопасности. Специалисты ГАСЗНАК провели детальный анализ инфраструктуры объектов, выполнили замеры, учли маршруты движения погрузочной техники, автотранспорта и пешеходов, а также выявили зоны повышенного риска.

В рамках проекта были изготовлены и установлены информационные стенды, схемы движения, дорожные знаки, горизонтальная и вертикальная разметка, а также электронные табло «Количество дней без травматизма», оснащённые датчиками температуры, уровня шума и модулями точного отображения даты. Все элементы соответствуют требованиям ГОСТ и отраслевым стандартам.

Комплексное решение позволило не только значительно повысить уровень безопасности персонала и посетителей, но и оптимизировать внутренние логистические процессы, а также усилить культуру промышленной безопасности за счёт наглядной визуализации ключевых показателей.

«Безопасность на производственной территории начинается с чёткой и понятной организации движения, — отметил руководитель проекта от ГАСЗНАК. —
Наши решения помогают заказчикам избежать аварийных ситуаций, снизить простои техники и обеспечить бесперебойную работу складов и цехов. А такие элементы, как электронные табло с интегрированными датчиками, дополнительно мотивируют коллективы беречь здоровье и соблюдать правила».
